当別町 i-works1.0辻野モデル

建築家 伊礼智氏 @satoshi_irei が手掛ける規格型住宅「i-works」
その北海道初となるモデルが「i-works1.0当別モデル」となっております

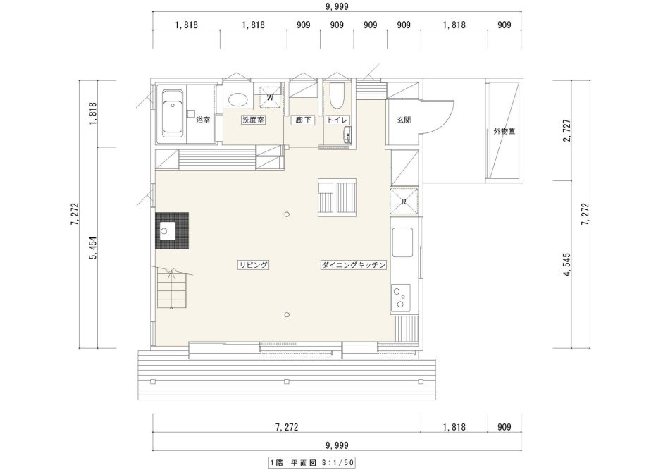
1.間取りについて

1階平面図
2階平面図
小屋裏平面図

2.素材について

外壁材:道南スギ
内装材:道南スギ、珪藻土

今回のモデルハウスでは地元である北海道の素材にこだわり、外壁と1部内装材には道南スギ、内壁と2階天井には道産の珪藻土、床はナラのフローリングを使いました
フローリングには亜麻公社 @amanosato さんから取り寄せた、亜麻のワックスを使用しています

3.機能について

薪ストーブ(写真左下)とパッシブ換気・パッシブ冷房の通気ガラリ(写真中央上)
通気ガラリ
小屋裏にある冷房用エアコン
SHARP製太陽光パネル

また、弊社の物件で多数採用例のあるパッシブ換気システムや薪ストーブを取り入れています
さらに、パッシブ換気と併せた小屋裏エアコンにより夏場はエアコン1台で家全体を冷やす仕組みとなっております

今回のモデルハウスでは昨今の電気料金高騰の対策として、太陽光パネルを採用しています
これにより、雪のない季節には発電したエネルギーで家の電力を賄います

4.家具・建具について

モデルハウス用にデザインされた旅する木のダイニングテーブル
モデルハウス用にデザインされた旅する木のソファ

建具や収納は、地元にある家具工房 旅する木 @tabisuruki さんに製作・取り付けを依頼し、さらにソファやダイニングテーブルなどの家具はモデルハウスオリジナルのデザインで作っていただきました

5.外構について

南側にあるメインの庭
北側玄関ポーチ前の造園

素敵な造園や外構は札幌の造園屋さんのOne&Nature @oneandnature さんに依頼しました

伊礼さんを始めとした様々な業者さんのご協力のおかげで素晴らしいモデルハウスになりました!

ご興味のある方はぜひ一度見学にお越しください!

※見学をご希望の方は下記URLにあるページからお申し込みください
https://tsujino-gr.co.jp/i-works/5887/

撮影:株式会社 西川公朗写真事務所 西川 公朗

一覧へ